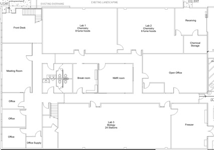
Facility Layout

Meeting Room

Meeting Room

Break Room

Break Room

Lab 1 Chemistry

Lab 2 Chemistry

Lab 3 Biology

NMR

NMR

LCMS

LCMS

Prep HPLC

HPLC

HPLC

-80 °C Freezer

-80 °C Freezer

Lyophilizer

Lyophilizer

Centrifuge

Centrifuge

MPLC Biotage

MPLC Biotage

Lquid Nitrogen

Liquid Nitrogen

Thermo Scientific Heracell Vios 160i Double Stack Incubators

Double Stack Incubators

CX-100 Cryo Express

CX-100 Cryo Express

Zeiss Primovert Inverted Microscope w

Zeiss Primovert Inverted Microscope

Thermo Scientific 1300 Series A2 Biological Safety Cabinet

Biological Safety Cabinet

eppendorf Centrifuge 5417R

Centrifuge 5417R

Balance

Balance

Applied Biosystems QuantStudio 3 Real Time PCR Instrument

QuantStudio 3 Real Time PCR

Cole-Parmer PCRmax Alpha Quad 96-Well Thermal Cycler

PCRmax Alpha Quad 96-Well Thermal Cycler

MY-PCR24.jpg-650

MY-PCR Prep Station

Thermo Scientific 7402 Cryoplus 2 Cryogenic Storage System

Cryogenic Storage System

Sign in

No account yet?

Sidebar